Skip to main content Skip to footer

Current Applications

The following is a list of proposed development applications that have been submitted to the Township of Centre Wellington.

Planning Notices

View the Planning Notices Page

Current Development Applications

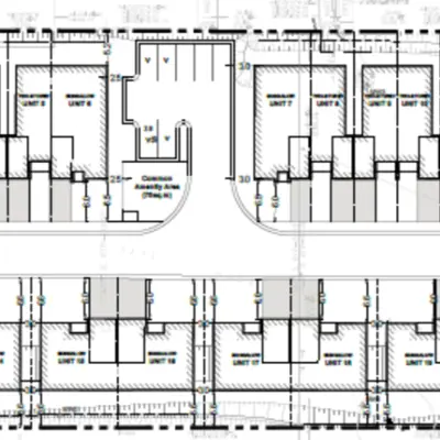
The Township of Centre Wellington has received a complete application for an official plan amendment and zoning by-law amendment pursuant to Section 17 and Section 34 of the Planning Act, R.S.O. 1990. The Township’s file numbers for these applications are OP007-2025 and RZ006-2025. The subject land is known municipally as 650 Victoria Terrace, Fergus.

The purpose of the proposed official plan amendment is to re-designate the lands from Industrial to Mixed-Use Residential. The effect of the amendment is to re-designate the lands for a future mixed-use residential development.

The purpose of the proposed zoning by-law amendment is to rezone the lands from “M1-Service Industrial” to “R6.XX- Residential Mixed-Use Exception”. The effect of the amendment is to implement zoning regulations necessary to facilitate the development of a mixed-use development consisting of 192 townhomes and 11 commercial units.

A related application has been filed with the County of Wellington to amend the County Official Plan (File OP-2025-09).

Notices

 

 

TAKE NOTICE that the Township of Centre Wellington has received a complete application for an official plan amendment pursuant to Section 17 of the Planning Act, R.S.O. 1990. The Township’s file number for this application is OP002-2025. The subject land is known municipally as 6586 Beatty Line North, Nichol, as shown on the key map below.

Purpose and Effect

The purpose of the proposed official plan amendment is to bring land into the Fergus Urban Centre and redesignate the lands to Residential and Core Greenlands. The effect of the amendment is to allow future residential development.

A related application has been filed with the County of Wellington to amend the County Official Plan (File OP-2025-05).

Notices

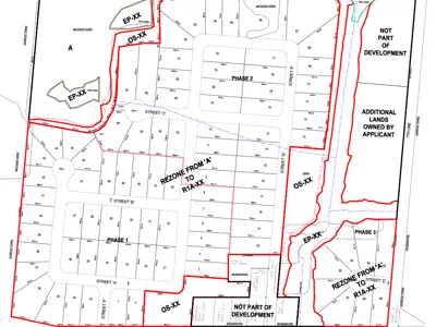
TAKE NOTICE that the Township of Centre Wellington has received a complete application for approval of an official plan amendment pursuant to Section 17 of the Planning Act, R.S.O. 1990. The Township’s file number for this application is OP006-2025. The subject land is known municipally as 6704 Beatty Line North, 6684 Beatty Line North, 7692 Sideroad 15 and 7715 Sideroad 15 in Nichol.

The purpose of the proposed official plan amendment is to bring land into the Fergus Urban Centre and redesignate the lands to Residential and Core Greenlands. The effect of the amendment is to allow future residential development.

A related application has been filed to the County of Wellington to amend the County Official Plan (File OP-2025-08).

Notices

TAKE NOTICE that the Township of Centre Wellington has received a complete application for an official plan amendment and zoning bylaw amendment pursuant to Section 17 and Section 34 of the Planning Act, R.S.O. 1990. The Township’s file numbers for these applications are OP005-2025 and RZ004-2025. The subject land is known municipally as 6581 Highway 6 in Fergus.

The purpose of the proposed official plan amendment is to bring land into the Fergus Urban Centre and redesignate the land to Residential. The effect of the amendment is to redesignate the lands for future residential development.

The purpose of the proposed zoning bylaw amendment is to rezone the lands from ‘A’ - Agricultural to Various Residential Zones and ‘OS’ - Open Space. The effect of the amendment is to implement zoning regulations necessary to facilitate the development of a residential subdivision.

Related applications have been filed to the County of Wellington to amend the County Official Plan (File OP-2025-07) and a Draft Plan of Subdivision Approval (File 23T-25004).

Notices

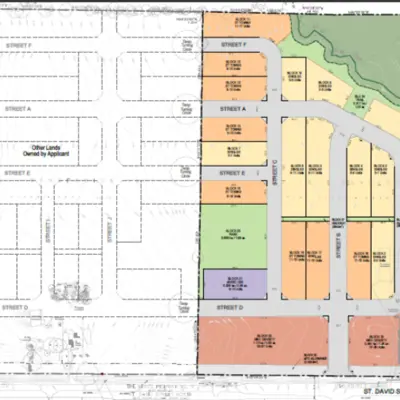
TAKE NOTICE that the Township of Centre Wellington has received a complete application for an official plan amendment and zoning bylaw amendment pursuant to Section 17 and Section 34 of the Planning Act, R.S.O. 1990. The Township’s file numbers for these applications are OP004-2025 and RZ002-2025. The subject land is known municipally as 968 St. David Street North in Fergus.

The purpose of the proposed official plan amendment is to bring land into the Fergus Urban Centre and redesignate the land to Residential and Core Greenlands. The effect of the amendment is to allow future residential development.

The purpose of the proposed zoning bylaw amendment is to rezone the lands from ‘A’ - Agricultural to Various Residential Zones, ‘OS’ - Open Space and ‘EP’ - Environmental Protection. The effect of the amendment is to implement zoning regulations necessary to facilitate the development of a residential subdivision.

Related applications have been filed to the County of Wellington to amend the County Official Plan (File OP-2025-06) and a Draft Plan of Subdivision Approval (File 23T-25003).

Notices

TAKE NOTICE that the Township of Centre Wellington has received a complete application for approval of a zoning by-law amendment pursuant to Section 34 of the Planning Act, R.S.O. 1990 and will hold a public meeting regarding the proposed by-law amendment on Wednesday, January 29, 2025, at 6:00 p.m. in the Council Chamber, 1 MacDonald Square, Elora, Ontario. The meeting can also be viewed online at https://centrewellington.civicweb.net/portal/.  The purpose of the public meeting is to present the proposed by-law amendment and to receive public input prior to making a decision. The Township’s File Number for this application is RZ006-24. The subject land is known municipally as 73 & 79 Sideroad 19 in Fergus.

    Purpose and Effect

The purpose of the proposed zoning by-law amendment is to change the zoning from R1A (Residential) to R3.XX.X (Residential Exception). The effect of the proposed zoning by-law amendment is to implement zoning provisions to facilitate the development of semi-detached dwellings, cluster townhouse units and single detached dwellings.

A revised submission was provided on October 20, 2025

TAKE NOTICE that the Township of Centre Wellington has received a complete application for approval of a zoning by-law amendment pursuant to Section 34 of the Planning Act, R.S.O. 1990. The Township’s File Number for this application is RZ005/24. The subject land is known municipally as 6235 Guelph Street, formerly Nichol Township. 

The purpose of the proposed zoning by-law amendment is to change the zoning from ‘A.19.3’ (Agricultural Exception) and ‘EP’ (Environmental Protection) to ‘A.19.X’ (Agricultural Exception) and ‘EP’ (Environmental Protection). The effect of the proposed zoning by-law amendment is to permit a battery energy storage facility on a portion of the property. The applicant has also filed an application with the County of Wellington for an Official Plan Amendment. The County’s file number is OP-2024-04.

Additional Reports and Memos

Recently Approved Applications

the Township of Centre Wellington has received a complete application for approval of a zoning by-law amendment pursuant to Section 34 of the Planning Act, R.S.O. 1990, and will hold a public meeting regarding the proposed by-law amendment on Monday, August 25, 2025, at 6 p.m. in the Council Chamber, 1 MacDonald Square, Elora, Ontario. The meeting can also be viewed online at https://centrewellington.civicweb.net/portal/.  The purpose of the public meeting is to present the proposed by-law amendment and to receive public input prior to making a decision. The Township’s file number for this application is RZ005-2025.  The subject land is known municipally as 6949 Wellington Road 7, Nichol.

The purpose of the proposed zoning by-law amendment is to change the zoning from “A” Agricultural and “EP” Environment Protection to “A” Agricultural Exception and “EP” Environment Protection. The effect of the amendment is to implement zoning regulations necessary to establish a shop for the repair and maintenance of farm drainage equipment as an agriculture-related use.

TAKE NOTICE that the Township of Centre Wellington has received a Township-initiated application for an official plan amendment and zoning by-law amendment pursuant to Section 17 and Section 34 of the Planning Act, R.S.O. 1990. A public meeting regarding these two applications will be held on Monday April 14, 2025, at 2:00 p.m. in the Council Chamber, 1 MacDonald Square, Elora, Ontario. The purpose of the public meeting is to present the applications and to receive public input prior to making a decision. The Township’s file numbers for these applications are OP01/25 and RZ01/25.


Purpose and Effect of the Proposed Official Plan and Zoning By-law Amendments
The purpose of the proposed official plan amendment is to change Section C.5- Housing Policies to include a new section C.5.8- Additional Residential Units. The effect of the official plan amendment is to include policies regarding Additional Residential Units (ARUs) on land where residential uses are permitted.

The purpose of the proposed zoning by-law amendment is to allow Additional Residential Units (ARUs), both attached and detached, on lands where residential uses are permitted and provide associated regulations. And further to permit “M1-Service Industrial” uses to be added to the list of permitted uses in “M2 – General Industrial”.

The effect of the amendment is to implement zoning regulations necessary to facilitate Additional Residential Units and to add permitted uses in the M2 - Industrial zone.

Due to the amendments broadly affecting lands in the Township, a key map has not been provided.

 

TAKE NOTICE that the Township of Centre Wellington has initiated an application for a zoning by-law amendment pursuant to Section 34 of the Planning Act, R.S.O. 1990 and will hold a public meeting regarding the proposed by-law amendment on Monday January 27, 2025, at 6:00 p.m. in the Council Chamber, 1 MacDonald Square, Elora, Ontario. The meeting can also be viewed online at https://centrewellington.civicweb.net/portal/.  

The purpose of the public meeting is to present the proposed by-law amendment and to receive public input prior to making a decision. The Township’s File Number for this application is RZ007-24. 

TAKE NOTICE that the Township of Centre Wellington has received a complete application for approval of a zoning by-law amendment pursuant to Section 34 of the Planning Act, R.S.O. 1990 and will hold a public meeting regarding the proposed by-law amendment on Wednesday September 25, 2024 at 6:00 p.m. in the Council Chamber, 1 MacDonald Square, Elora, Ontario. The meeting can also be viewed online at https://centrewellington.civicweb.net/portal/.  The purpose of the public meeting is to present the proposed by-law amendment and to receive public input prior to making a decision. The Township’s File Number for this application is RZ04/24. The subject land is known municipally as 750 St. David Street North in Fergus.

    The purpose of the proposed zoning by-law amendment is to change         the zoning from R1C (Residential) to R4 (Residential). The effect of           the proposed zoning by-law amendment is to facilitate the construction of a stacked townhouse development consisting of 12 residential units.

 

Applications Appealed to the OLT

TAKE NOTICE that the Township of Centre Wellington has received a complete application for approval of an official plan amendment pursuant to Section 17 of the Planning Act, R.S.O. 1990. The Township’s file number for this application is OP003-2025. The subject land is known municipally as 6574 Gerrie Road and 7581 Sideroad 15 in Elora.

The purpose of the proposed official plan amendment is to bring land into the Elora/Salem Urban Centre and redesignate the lands to Residential and Core Greenlands. The effect of the amendment is to redesignate the lands for future residential development.

A related application has been filed to the County of Wellington at amend the County Official Plan (File OP-2025-06)

Notices

The Township of Centre Wellington has received an application to amend the Township of Centre Wellington Zoning By-law (File RZ14/22). This application has been deemed complete and this Notice of Complete Application is being given in accordance with the requirements of the Planning Act, R.S.O. 1990. The subject land is known municipally as 75 Woolwich Street East, Nichol.

The purpose of the proposed Zoning By-law Amendment is to change the current zoning of the property from “FD” Future Development to “R2” Residential Exception, “R3” Residential Exception, and “OS” Open Space. The effect of the amendment is to allow 147 single detached dwellings, 149 townhouse units, a park and open space.

The applicant has also filed an application with the County of Wellington for approval of a proposed draft plan of subdivision (File number #23T-22005).

 

A Revised Application was submitted in July, 2023 including the following plans/reports



 

The Township of Centre Wellington has received an application to amend the Township of Centre Wellington Zoning By-law (File# RZ05/22). This application has been deemed complete and this Notice of Complete Application is being given in accordance with the requirements of the Planning Act, R.S.O. 1990. The subject land to which the proposed amendment applies is shown on the notice below.

The proposed zoning by-law amendment seeks to revise the boundary between the R1A.58.14 zone and the OS zone. The intent of the proposed Zoning By-law Amendment is to adjust the boundary of the OS zone to create a lateral woodland corridor along South River Road.

Sign up to our Newsletter

Stay up to date on the city's activities, events, programs and operations by subscribing to our eNewsletters.

This website uses cookies to enhance usability and provide you with a more personal experience. By using this website, you agree to our use of cookies as explained in our Privacy Policy.